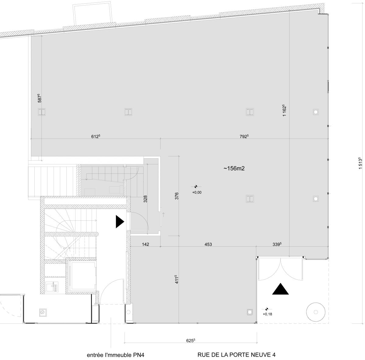
Sion, local commercial de 156 m2 au centre-ville près de la place du Midi LOYER CHF 2'900.-/mois   |  CHARGES CHF 300.-/mois

Rue de la Porte Neuve 4, 1950 Sion
    9 photos    Fichier ou plan   
  • Loyer : CHF 2'900.-/mois
  • Charges : CHF 300.-/mois
  • Loyer (total) * :CHF 3'200.- /mois
  • S. utile: ~ 156m²
  • Disponible: 01/04/2026
  •  

Description


À louer – Local commercial de 156 m² au rez-de-chaussée – Sion centre

Nous proposons à la location un local commercial de 156 m², situé au rez-de-chaussée d’un immeuble en plein centre-ville de Sion, à deux pas de la Place du Midi.

Ce bien dispose d’un WC séparé et d’un réduit.

Il est dédié à une activité commerciale uniquement!

Avantages :

  • Excellente visibilité en centre-ville
  • A proximité des transports publiques

Information supplémentaire :

  • Avec décompte de charges

Tout afficher

Détails


  • Pièce(s) : 1
  • Salle(s) d'eau : 1
  • Niveau: rez-de-ch.
  • Type : Local commercial
  • sans place de parc
  • Réf. : 1564.100

Situation géographique

Voir en Street View    Voir sur Google Maps