Ayent/Saxonne, grande villa d’architecte partiellement rénovée de 7.5 P de 315 m2 VENDU

Rte Chp de la Grange 36, 1966 Saxonne

CHF 770'000.-
1
2
3
4
5
6
7
8
9
10
11
12
13
14
15
16
17
18
19
20
21
22
23
24
25
26
27
28
29
30
31
32
33
34
35
    35 photos     Google Maps     Fichier ou plan   
  • Prix de vente : CHF 770'000.-
  • Surface habitable : ~ 315 m²
  • Surface de la parcelle : ~ 664 m²
  • Volume : ~ 1'200 m³
  • Disponible : Vendu

Description

Cette très grande villa d’architecte, partiellement rénovée, se situe sur une parcelle de 664 m2 à la route du Champ de la Grange 36 à Saxonne, sur la commune d’Ayent.

La situation de la villa est très privilégiée, à deux pas du centre scolaire, de la crèche et de toutes les commodités d’Ayent et avec une vue superbe et apaisée sur les Alpes valaisannes. Tout ceci, dans un cadre verdoyant, avec très peu de vis-à-vis et dans un calme absolu.

La parcelle comprend un plat à l’ouest (~55 m2) et deux plats à l’est (~50 et ~ 40 m2 à l’est), avec des ambiances très différentes. La parcelle propose également trois places de parc extérieures et deux places de stationnement dans le garage.

La villa a été construite en 1964 sur deux étages (sans considérer les combles à aménager), dans une typologie et un style ayant très bien vieilli. Les volumes de chaque pièce sont généreux, la hauteur sous-plafond est conséquente (h= 2.50 m), ce qui permet de créer une ambiance cossue dans cette villa de caractère.

Quelques rénovations ont été réalisées, comme, entre autres, la cuisine dans les années 90, une partie des fenêtres (séjour), le brûleur du chauffage, la salle d’eau haut (accès chaise roulante) et des rénovations sont à prévoir.

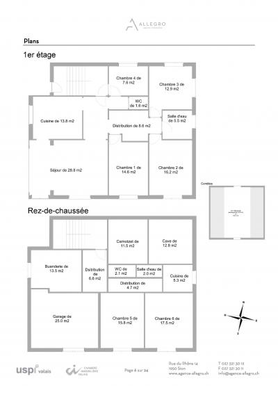
Le volume est impressionnant pour puisqu’il atteint 1'200 m3 (selon SIA 416) sur 315 m2 de surface habitable brute, sans considérer les combles. En surface habitable nette (= m2 balayables), la distribution des pièces s’organise de la manière suivante :

Au 1er étage :

  • Un séjour de 28.8 m2,
  • Une cuisine de 13.8 m2,
  • Quatre chambres de 16.2, 14.6, 12.9 et 7.6 m2. A noter que cette dernière dispose d’un accès privatif,
  • Une salle d’eau avec douche de 5.5 m2 et un wc visiteur de 1.6 m2,
  • Un hall d’entrée et de distribution de 6.9 m2.

Au rez-de-chaussée :

  • Deux chambres de 17.5 et 15.8 m2,
  • Une cuisine de 5.3 m2,
  • Un WC et une salle d’eau de 2.1 et 2.0 m2,
  • Un carnotzet de 11.5 m2, une cave de 12.8 m2, une buanderie de 13.5 m2 et un garage de 25.0 m2.

La typologie serait facilement adaptable, avec plusieurs options :

  • Utilisation comme villa avec 6, voire 7 chambres,
  • Utilisation comme villa avec 4 chambres et comme 2.5 p ou surface commerciale au rez-de-chaussée.
  • Aménagement des combles et création de 3 appartements. En effet, grâce à la vente d’un jardin en zone à bâtir de 99 m2 compris dans le prix de vente (parcelle 8582 de 99 m2), la réserve de densité est suffisante pour pouvoir aménager complètement les combles.

Points forts :

  • Très grand volume de villa
  • Villa cossue avec caractère
  • Situation calme et verdoyante
  • Partiellement rénovée

Disponibilité à avril 2025

Tout afficher

Détails


  • Pièce(s) : 7.5
  • Chambre(s): 6
  • Salle(s) d'eau: 3
  • Catégorie : Villa
  • Réf. : 2101

 Exposition


 A proximité


 Environnement


 Extérieur


 Intérieur


 Ensoleillement et vue


Situation géographique

Voir en Street View    Voir sur Google Maps