Sierre, au centre-ville, appartement de 3.5 pièces très lumineux de 123 M2 RÉSERVÉ

route de Sion 28, 3960 Sierre

CHF 480'000.-
1
2
3
4
5
6
7
8
9
10
11
12
13
14
15
16
17
18
19
20
21
22
23
    23 photos     Google Maps     Fichier ou plan   
  • Prix de vente : CHF 480'000.-
  • Surface habitable : ~ 123 m²
  • Disponible : Réservé

Description

Cet appartement de 3,5 pièces se situe au 4ième étage d’un bel immeuble construit en 1969 à la route de Sion 28 à Sierre. La situation est idéale au centre-ville, à proximité directe de toutes les commodités (commerces, centres médicaux, écoles, jardin d’enfants…), tout en disposant d’un dégagement agréable, avec peu de vis-à-vis.

Avec ses 2 chambres confortables et sa lumineuse pièce à vivre, cet appartement présente une disposition idéale avec une bonne séparation des espaces et de beaux volumes.

Le standing de ce bien est de qualité, avec notamment une jolie hauteur sous-plafond, du parquet et une cheminée française. L’appartement a été bien entretenu, avec le changement des fenêtres (~ 2010) et la rénovation partielle des salles de bains (~2015), et dispose encore d’un joli potentiel de rénovation.

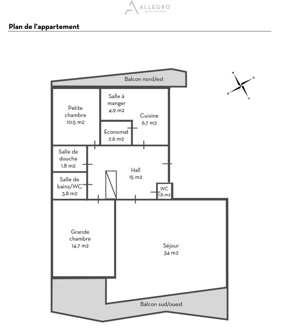
L’appartement dispose d’une surface habitable brute de 112 m2, à laquelle s’ajoutent deux balcons de 22.6 m2 (total de la surface de vente pondérée avec les 1/2 balcons = 123 m2). Il s’organise de la manière suivante en considérant les surfaces habitables nettes (=balayables) :

  • Un hall avec armoires de rangement de 15 m2,
  • Un séjour avec cheminée de 34 m2 et accès au balcon sud/ouest,
  • Une cuisine ouverte de 6.7 m2 avec accès au balcon nord/est,
  • Une salle à manger de 4.9 m2 avec accès au balcon nord/est,
  • Un économat de 2.6 m2,
  • Une grande chambre de 14.7 m2 avec accès au balcon sud/ouest,
  • Une petite chambre de 10.5 m2 avec accès au balcon nord/est,
  • Une salle de bains/WC de 3.8 m2 et une salle de douche 1.8 m2,
  • Un WC/visiteurs de 1.8 m2.

Le bien comporte également une cave comprise dans le prix de vente. Une place de parc intérieure peut être acquise en sus.

Points forts :

  • Situation très centrale avec beau dégagement
  • Beaux volumes et lumineux
  • Belle orientation des pièces
  • Deux balcons

Tout afficher

Détails


  • Pièce(s) : 3.5
  • Chambre(s): 2
  • Salle(s) d'eau: 2
  • Niveau: 4. Etage
  • Catégorie : Appartement
  • Réf. : 2158

 Exposition


 Environnement


 Intérieur


Situation géographique

Voir en Street View    Voir sur Google Maps